Объявления Симферополя Недвижимость Жилая недвижимость Купля-продажа жилой недвижимости 3-комнатные квартиры
Продано
Собственную 3-х комнатную "сталинку" в Симферополе
Главные плюсы:
Очень прочная постройка (фундамент, стены без трещин и усадок);
Высокий цоколь;
Возможность сделать автономный вход;
Возможность огородить собственный дворик:
Возможность пристроить ещё 50 м.кв. дополнительных помещений;
Возможность использовать квартиру под офис или магазин выходящий на ул.Луговую;
Высокие потолки - 3,15 м;
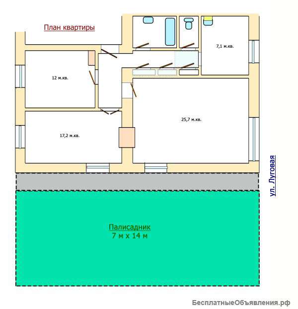
Большая гостиная - почти 26 кв. м.;
Раздельные комнаты;
Раздельный санузел;
Новые трубы канализации и водопровода;
Возможность расширить кухню;
Возможность расширить ванную;
Квартира сухая;
Очень хорошая теплоизоляция (летом - прохладно, зимой - тепло).
Отопление автономное (французский двухконтурный газовый котел);
Трубы и батареи отопления новые;
Тихий район, но не далеко от центра города.
Некоторые минусы:
Евроремонт не делался.
Окна и двери деревянные крашенные.
Отсутствие решёток на окнах.
Отсутствие керамической плитки на стенах в ванной и туалете.
Неухоженный палисадник под окнами.
Расположение:
Крым, г. Симферополь, поворот с пр. Победы на ул.Луговую. Бывший Первый Военный Городок.
Инфраструктура:
Хорошая транспортная развязка – прямой выезд на Феодосийское шоссе. До моря – 35 минут на машине или один час на маршрутке.
Машину можно ставить во дворе. В 300 метрах от дома - платная охраняемая стоянка. В 100 метрах – заправка.
В 400 метрах – с/х Рынок, Супермаркет бытовой техники, несколько мебельных магазинов, Супермаркет электроники.
В 400 метрах - Частная клиника; Районная поликлиника – 500 м.
В 30 метрах речка Малый Салгир. В 100 метрах – уютный Ресторанчик.
В доме: Приличные соседи. Тихий зелёный двор.
Дом:
Старая постройка из блоков известняка, 1953 года. Тогда ещё использовались экологически чистые материалы. Фундамент и стены без единой трещины до сих пор. Межэтажные перекрытия из дубовых балок. Под квартирой можно сделать погреб (мы начали рыть, но так и не доделали).
Квартира:
Евроремонт не делался. Состояние - жилое. Общая площадь - 76,0 м.кв., Жилая - 54,9 м.кв., 1-ый этаж старого двухэтажного каменного дома (бывший военный городок). Стены толстые (летом – прохладно, зимой – тепло).
Комнаты все раздельные - 25,7/17,2/12
Окна высокие, деревянные, выходят на юго-запад, северо-запад и северо-восток
Потолки высотой - 3,15 м (с момента постройки дома: гипсокартонные из настоящего гипса - до сих пор ни в одной плите ни трещинки!)
Кухня - 7,1 м.кв.;
Санузел раздельный; Ванная комната - 3,4 м.кв.; Туалет = 1,4 м.кв.;
Автономное газовое отопление и горячая вода на кухне и в ванной (французский, очень экономичный котёл),
2 больших антресоли, 3 кладовки (общая площ. - 1,2 м.кв.).
Дополнительно:
Под окнами - палисадник 7х14 м, в котором стоит деревянный сарайчик, 6 фруктовых деревьев (вишни, абрикос), возможность построить гараж или пристройку к квартире (дополнительную комнату) до 50 м.кв, и огороженный собственный дворик до 50 м.кв. А также возможно сделать отдельный вход с улицы Луговой или со двора (многие соседи уже это сделали).
Лучше обращаться по е-мейл
Очень прочная постройка (фундамент, стены без трещин и усадок);
Высокий цоколь;
Возможность сделать автономный вход;
Возможность огородить собственный дворик:
Возможность пристроить ещё 50 м.кв. дополнительных помещений;
Возможность использовать квартиру под офис или магазин выходящий на ул.Луговую;
Высокие потолки - 3,15 м;
Большая гостиная - почти 26 кв. м.;
Раздельные комнаты;
Раздельный санузел;
Новые трубы канализации и водопровода;
Возможность расширить кухню;
Возможность расширить ванную;
Квартира сухая;
Очень хорошая теплоизоляция (летом - прохладно, зимой - тепло).
Отопление автономное (французский двухконтурный газовый котел);
Трубы и батареи отопления новые;
Тихий район, но не далеко от центра города.
Некоторые минусы:
Евроремонт не делался.
Окна и двери деревянные крашенные.
Отсутствие решёток на окнах.
Отсутствие керамической плитки на стенах в ванной и туалете.
Неухоженный палисадник под окнами.
Расположение:
Крым, г. Симферополь, поворот с пр. Победы на ул.Луговую. Бывший Первый Военный Городок.
Инфраструктура:
Хорошая транспортная развязка – прямой выезд на Феодосийское шоссе. До моря – 35 минут на машине или один час на маршрутке.
Машину можно ставить во дворе. В 300 метрах от дома - платная охраняемая стоянка. В 100 метрах – заправка.
В 400 метрах – с/х Рынок, Супермаркет бытовой техники, несколько мебельных магазинов, Супермаркет электроники.
В 400 метрах - Частная клиника; Районная поликлиника – 500 м.
В 30 метрах речка Малый Салгир. В 100 метрах – уютный Ресторанчик.
В доме: Приличные соседи. Тихий зелёный двор.
Дом:
Старая постройка из блоков известняка, 1953 года. Тогда ещё использовались экологически чистые материалы. Фундамент и стены без единой трещины до сих пор. Межэтажные перекрытия из дубовых балок. Под квартирой можно сделать погреб (мы начали рыть, но так и не доделали).
Квартира:
Евроремонт не делался. Состояние - жилое. Общая площадь - 76,0 м.кв., Жилая - 54,9 м.кв., 1-ый этаж старого двухэтажного каменного дома (бывший военный городок). Стены толстые (летом – прохладно, зимой – тепло).
Комнаты все раздельные - 25,7/17,2/12
Окна высокие, деревянные, выходят на юго-запад, северо-запад и северо-восток
Потолки высотой - 3,15 м (с момента постройки дома: гипсокартонные из настоящего гипса - до сих пор ни в одной плите ни трещинки!)
Кухня - 7,1 м.кв.;
Санузел раздельный; Ванная комната - 3,4 м.кв.; Туалет = 1,4 м.кв.;
Автономное газовое отопление и горячая вода на кухне и в ванной (французский, очень экономичный котёл),
2 больших антресоли, 3 кладовки (общая площ. - 1,2 м.кв.).
Дополнительно:
Под окнами - палисадник 7х14 м, в котором стоит деревянный сарайчик, 6 фруктовых деревьев (вишни, абрикос), возможность построить гараж или пристройку к квартире (дополнительную комнату) до 50 м.кв, и огороженный собственный дворик до 50 м.кв. А также возможно сделать отдельный вход с улицы Луговой или со двора (многие соседи уже это сделали).
Лучше обращаться по е-мейл
| Цена: |
62 000 $
|
| Город: |
Симферополь
|
| Тип: | Продаю |
| Автор: |
|
Регистрация с 11.12.2015
|
|
| Сайт: | sites.google.com/site/mezgorod/ |
| Дата: | 23.01.2017 10:58 |
| Номер: | 663706 |
Сделать объявление:
Ссылка на это объявление:
Похожие объявления
Квартира с дизайнерским ремонтом
16 200 000 руб
20.07.2022
3 комнатную квартиру в пгт. Гвардейское
5 200 000 руб
31.03.2021
Кв-ру г. Симферополь ул.Крымских Партизан.
10 000 000 руб
14.04.2026
3-х квартира на Залесской
6 000 000 руб
25.07.2022
3 комнатная квартира в пгт Гвардейское
6 340 000 руб
06.03.2024
3х кв на ул Баррикадной
6 500 000 руб
02.12.2021
3х квартира на ул.Героев Сталинграда
4 700 000 руб
24.11.2021
3х Квартира на Героев Сталинграда
5 100 000 руб
28.10.2021
Квартира на Героев Сталинграда
5 900 000 руб
05.07.2021
Квартира-хостел
9 000 000 руб
11.10.2021
3х кв в самом центре Симферополя
5 700 000 руб
22.09.2021
Трёхкомнатную квартиру в пгт. Почтовое Бахчисарайского района.
1 790 000 руб
04.04.2021
Трехкомнатную квартиру
6 500 000 руб
19.04.2022
Квартира для большой семьи
10 200 000 руб
25.03.2021
Квартиру в Крыму с видом на море. Западный берег Крыма.
6 000 000 руб
22.08.2021
Утонченность и изысканность это для вас
10 000 000 руб
21.05.2021
3х кв на Залесской
5 000 000 руб
15.10.2021
3-х комнатная квартира в районе Москольца
7 000 000 руб
13.01.2022
3х комнатная квартира в новострое
10 500 000 руб
07.06.2022
3х Квартира для на Мате Залки
5 500 000 руб
25.08.2021
3х квартиру 72 кв.м
6 100 000 руб
26.04.2021
Квартира на Москольце+обмен
8 543 210 руб
30.07.2024
3х кв на Гавена
7 500 000 руб
01.11.2021
Уютная 3 комнатная квартира в центральном районе города
7 000 000 руб
06.03.2024
3х комнатная квартира
5 700 000 руб
06.06.2022
3-х кв на ул Шполянская центр города Симферополь
6 300 000 руб
02.09.2022
3 комнатную на Москольце
15 500 000 руб
21.02.2023
Обменяю 2 квартиры в г.Армянск (Северный Крым): 3х комн и 2х комн.
2 000 000 руб
22.05.2021
Квартиру на бело куна
8 000 000 руб
06.12.2022
3х комнатную в Крыму пригород Симферополя
3 700 000 руб
22.12.2021

Квартира с дизайнерским ремонтом, мебелью и техникой! Продам 3х комнатную квартиру в центре Симферополя. Преимущества: * Расстановка мебели...